Industrial
ID 25360244Exclusive property
Industrial Complex for Sale | Oliveira de Frades
OLIVEIRA DE FRADES, 3680-172
Please contact us
- Size39 - 11 479 m²
- AvailabilityImmediately

Carla Catalão
Agent details

Tomas Bonifacio
Agent details
- Summary
- Facilities & services
- Location
- Floor plans
- Brochures
- Agents
- Enquire
Summary
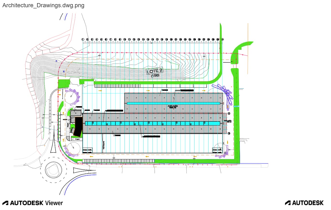
Industrial Complex for Sale | Price: €5,500,000.00
This modern industrial complex available for sale is located in the Industrial Zone of Oliveira de Frades, benefiting from a privileged position in central Portugal. The location offers excellent road accessibility, with proximity to the main communication routes connecting to the urban centers of Viseu, Aveiro, and Porto, making it ideal for large-scale industrial operations.
Set on a plot of 45,948 m², the complex provides 11,479 m² of warehouse/production area, distributed across two large industrial warehouses and two small warehouses with a total area of 154 m². Warehouse 1, with 6,752 m², features premium characteristics including waterproof roofing, walls with reinforced thermal insulation, three grade-level doors and two overhead cranes of 20t and 40t. Warehouse 2, with 4,573 m², has two grade-level doors, two overhead cranes of 16t and 5t, and waterproof roofing.
The facilities include 868 m² of support areas, distributed between offices on the first floor with panoramic views of the main warehouse; common areas equipped with reception, kitchenette, changing rooms with showers and lockers; and technical areas. The parking lot includes 78 spaces for light vehicles and five spaces for heavy vehicles up to 16 meters.
The industrial buildings benefit from LED lighting, reinforced industrial flooring (B25 slab with 15cm thickness in fiber-reinforced concrete), ensuring adequate load capacity for heavy industrial equipment. They also feature their own 650 kVa generator, photovoltaic panels for energy efficiency, a boiler, a propane gas reservoir, a compressor, and prepared data network infrastructure.
With an industrial use license and 33,601 m² of uncovered area, this industrial complex represents a unique opportunity for companies requiring advanced technical facilities in a strategic location.
Spaces available
Location
The location in the Oliveira de Frades Industrial Zone, situated in Portugal's central region, offers excellent road accessibility, with the A25 motorway just 4 kilometres away (6-minute drive), providing direct access to the extensive Portuguese and Iberian motorway network. This strategic positioning enables efficient distribution operations, with the Aveiro harbour accessible within 40 minutes (56 km), Porto reached in just one hour (93 km), and Lisbon within three hours (289 km). The location also benefits from proximity to international markets, with Madrid accessible in under five hours (474 km), making it an ideal hub for companies requiring seamless connectivity across the Iberian Peninsula and broader European logistics networks.
Agents

Carla Catalão
Agent details

Tomas Bonifacio
Agent details





























