Industrial
ID 25360109Armazém Aveiras de Cima - Lote D
AZAMBUJA, 2050-197
Please contact us
- Size10 299 m²
- AvailabilityIV quarter 2025
- Summary
- Facilities & services
- Location
- Floor plans
- Brochures
- Agents
- Enquire
Summary
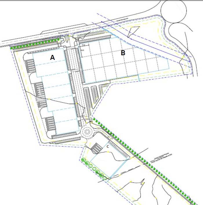
Land plot measuring 72.200 sqm, located next to the Aveiras de Cima CLC, 3 minutes from the A1 highway junction.
It is part of an industrial and logistics hub that is set to expand in the future and where leading companies in the sector already operate.
The land has an approved PIP for an Industrial Warehouse, Commerce and Services, with the following parameters:
- Warehouse with 10.299 sqm
- Ceiling height of 13 m
- Parking spaces for heavy goods vehicles: 58
- Parking spaces for cars: 339
Spaces available
Location
Aveiras de Cima
Agent

Miguel Morais Cera
Agent details







