Loja
ID 10012183Ceuta 106
PORTO, 4050-198
Preço Sob Consulta
- Descrição
- Características
- Certificação energética
- Localização e Transporte
- Piso
- Brochuras
- Consultores
- Questões sobre o imóvel
Descrição
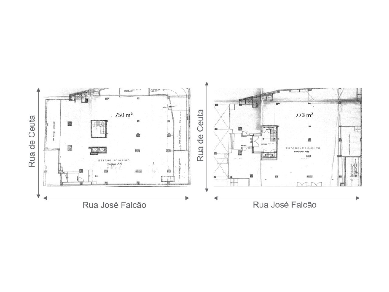
A loja com 1.523m2 insere-se em edifício de escritórios nos pisos superiores.
Localiza-se na esquina da Rua de Ceuta com a Rua José Falcão e beneficia da proximidade a parques de estacionamento, existentes em toda a zona envolvente.
O Porto é uma cidade que vive cultura e desperta novas tendências. Esta zona insere-se, precisamente, nesse ambiente, propondo um leque de marcas de moda, bares e restaurantes.
Disponibilidade imediata
Certificação energética
Localização e Transporte
Consultor

Cristina Almeida
Contactos do consultor


