
Loja
ID 25500969Loja para arrendar - Rua de Sá da Bandeira 569
PORTO, 4000-437
Preço Sob Consulta
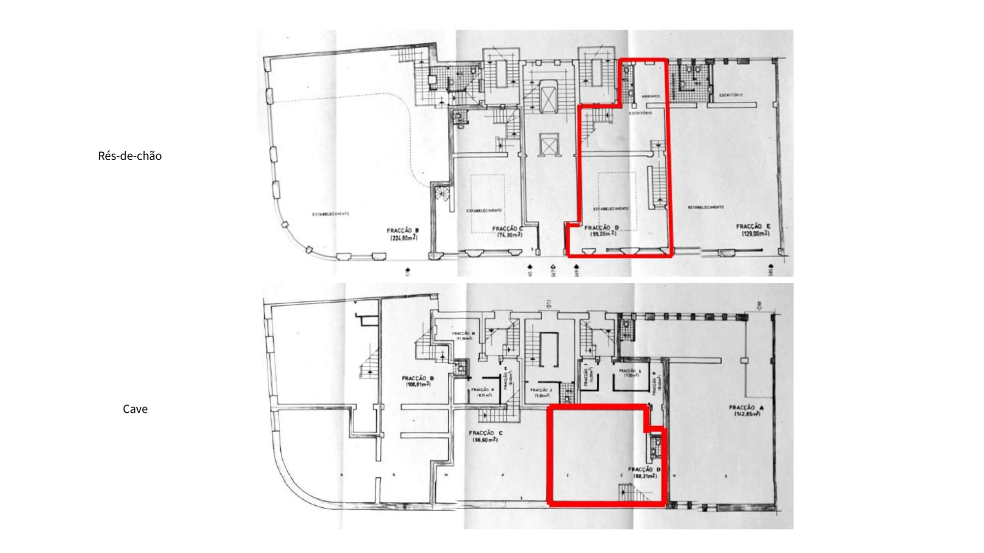
- Área168 m²
- DisponibilidadeSob consulta
- Descrição
- Características
- Certificação energética
- Localização e Transporte
- Piso
- Brochuras
- Consultores
- Questões sobre o imóvel
Descrição
Espaço comercial disponível para arrendamento com 167m² em pleno centro do Porto.
Localizado na Rua Sá da Bandeira, uma das ruas mais icónicas do centro do Porto. A curta distância da Avenida dos Aliados, Rua de Santa Catarina e Estação de São Bento.
Inserida numa área comercial vibrante com uma mistura de lojas tradicionais portuguesas, estabelecimentos comerciais modernos, cafés e restaurantes. O famoso Mercado do Bolhão fica nas proximidades, tornando esta zona um ponto de encontro tanto para locais como para turistas.
Tem ao seu dispor uma boa oferta de transportes públicos, metro e autocarro, estando a 15 minutos a pé da Estação de São Bento.
Espaços disponíveis
Certificação energética
Localização e Transporte
Consultor

Filipa Nascimento
Contactos do consultor