Loja
ID 25513240Exclusivo
Av. Infante Dom Henrique
LISBOA
Preço Sob Consulta
- Área2700 m²
- DisponibilidadeSob consulta
- Descrição
- Certificação energética
- Localização e Transporte
- Piso
- Brochuras
- Consultores
- Questões sobre o imóvel
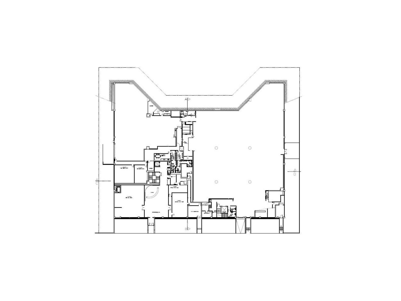
Descrição
Loja para Arrendamento na Av. Infante Dom Henrique | 2.700 m² | Parque das Nações/Moscavide – Lisboa
Excecional oportunidade de arrendamento de loja comercial com 2.700 m² na prestigiada Avenida Infante Dom Henrique, numa das zonas mais dinâmicas de Lisboa. Localizado entre o Parque das Nações e Moscavide, este espaço premium oferece visibilidade privilegiada e um fluxo constante de potenciais clientes, ideal para marcas de retalho, showrooms, ginásios, concept stores ou operações que procuram exposição máxima numa localização de referência.
Localização Premium com Acessibilidades Excecionais
A propriedade beneficia de uma localização estratégica com acesso direto a importantes eixos rodoviários, incluindo a Segunda Circular, Eixo Norte-Sul e proximidade à A1, facilitando a mobilidade de clientes e logística operacional. A zona envolvente concentra uma vasta gama de empresas nacionais e internacionais, hotéis de referência e está a apenas 5 minutos do Centro Comercial Vasco da Gama e 15 minutos da área residencial do Parque das Nações. A rede de transportes públicos é extensa, com estações de metro (Linha Vermelha - Moscavide e Oriente), comboios (Gare do Oriente) e múltiplas linhas de autocarros nas imediações, garantindo excelente conectividade para colaboradores e visitantes.
Características do Espaço Comercial
- Área total: 2.700 m² de espaço amplo e versátil
- Tipo de negócio: Arrendamento
- Configuração: Planta aberta adaptável a diversos conceitos comerciais
- Visibilidade: Fachada sobre a Avenida Infante Dom Henrique com elevado tráfego pedonal e rodoviário
- Zona em expansão: Área empresarial consolidada com crescente valorização imobiliária
- Envolvente premium: Proximidade a hotéis, escritórios corporativos e zonas residenciais de elevado poder de compra
- Acessos privilegiados: Múltiplas opções de transporte público e rodoviário
Este imóvel representa uma oportunidade única para estabelecer ou expandir operações comerciais numa das localizações mais procuradas de Lisboa, beneficiando de um ecossistema empresarial robusto e infraestruturas de excelência.
Para mais informações sobre esta loja para arrendamento no Parque das Nações ou para agendar visita, contacte a JLL Portugal.
Espaços disponíveis
Certificação energética
Localização e Transporte
Consultor

Guilherme Marques
Contactos do consultor


