Loja
ID 27501312Loja Para Arrendar na Rua Conde de Sabugosa 20, Lisboa
LISBOA, 1700-117
Preço Sob Consulta
- Área670 m²
- DisponibilidadeSob consulta
- Descrição
- Certificação energética
- Localização e Transporte
- Piso
- Brochuras
- Consultores
- Questões sobre o imóvel
Descrição
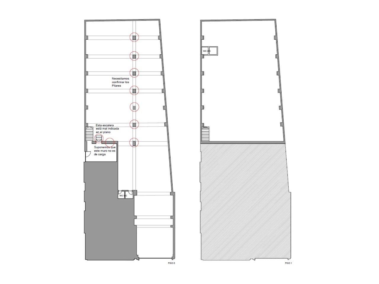
Espaço comercial excecional com 670m², dividido em 2 pisos, localizado na Rua Conde de Sabugosa, junto à Avenida de Roma, numa zona nobre de Lisboa. Esta loja de grandes dimensões oferece possibilidades únicas para negócios que necessitem de área ampla, com potencial para criar um espaço distintivo e de referência no mercado.
Vizinhança:
Avenida de Roma (a 100m)
Centro Comercial Alvalade (a 600m)
Praça de Londres (a 700m)
Restaurante Gambrinus (a 400m)
Café Versailles (a 350m)
Supermercado Pingo Doce (a 250m)
Parque José Gomes Ferreira (a 500m)
Transportes Públicos:
Metro Alvalade (Linha Verde) - a 9 min a pé (750m)
Metro Roma (Linha Verde) - a 6 min a pé (500m)
Autocarros 735, 744, 767 - paragens a 3 min a pé (200m)
Comboios CP - Estação Roma-Areeiro a 8 min a pé (650m)
Localização privilegiada próxima da Avenida de Roma, caracterizada pelo comércio tradicional de qualidade e zona residencial premium. Área com excelente visibilidade e fluxo constante de transeuntes, ideal para negócios de retalho especializado, restauração diferenciada ou serviços premium que beneficiem da ampla área disponível.
Espaços disponíveis
Certificação energética
Localização e Transporte
Consultor

Guilherme Marques
Contactos do consultor




