Loja
ID 9997282Exclusivo
Escola Politécnica 107
LISBOA, 1200-424
Preço Sob Consulta
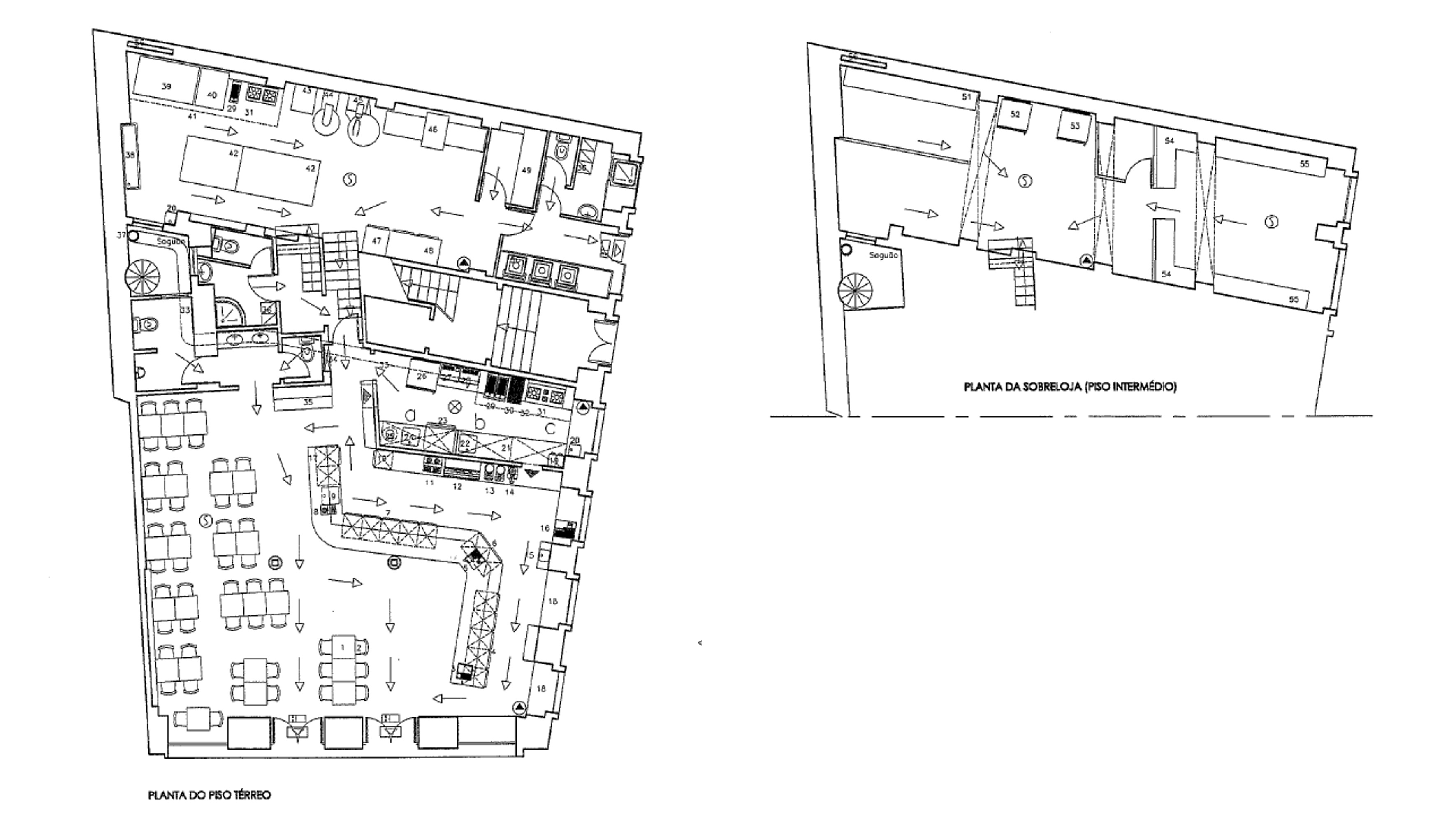
- Área300 m²
- DisponibilidadeSob consulta
- Descrição
- Características
- Localização e Transporte
- Piso
- Brochuras
- Consultores
- Questões sobre o imóvel
Descrição
PRÍNCIPE REAL - ESCOLA POLITÉCNICA | Loja 2 Pisos com Dupla Entrada de Esquina - Zona Premium Consolidada
Loja comercial em localização estratégica no coração do Príncipe Real, um dos bairros mais valorizados de Lisboa. Configuração em dois pisos com duas entradas independentes – principal para Rua da Escola Politécnica e secundária para Calçada Engenheiro Miguel Pais – garantindo máxima visibilidade e flexibilidade operacional. Os pisos encontram-se interligados interiormente.
ENVOLVENTE COMERCIAL DE EXCELÊNCIA
O Príncipe Real consolidou-se como polo de retalho premium e restauração de qualidade, atraindo marcas nacionais e internacionais de referência. A rua apresenta mix comercial diversificado e sofisticado:
→ Marcas estabelecidas: Benâmor, Barbour, Flabelus, Quarto Sala → Restauração qualificada: Zero Zero, Manteigaria, Atalho Real, Honest Greens → Comércio local especializado e concept stores → Perfil de consumo: médio-alto a alto, procura experiências diferenciadas → Dinâmica comercial estável ao longo da semana, com pico aos fins de semana
CARACTERÍSTICAS DA LOJA
✓ Configuração em 2 pisos interligados interiormente
✓ Dupla entrada independente (Rua Escola Politécnica + Calçada Eng. Miguel Pais)
✓ Localização de esquina com excelente exposição
✓ Duas montras para duas ruas distintas
✓ Luz natural abundante em ambos os pisos
Posicionamento estratégico em zona consolidada, tráfego qualificado, mix comercial premium.
Agende visita com JLL – Especialistas em retalho de excelência.
Espaços disponíveis
Localização e Transporte
Situada na Rua da Escola Politécnica, artéria de referência no Príncipe Real, em frente ao Museu de História Natural e da Ciência. A zona destaca-se pelo elevado tráfego pedonal de perfil sofisticado, combinando residentes de poder aquisitivo médio-alto, profissionais de escritórios próximos e fluxo turístico qualificado. → Metro Rato (Linha Amarela) a 5 minutos a pé → Proximidade imediata ao Jardim Botânico, Jardim do Príncipe Real e EmbaiXada → Zona de passagem entre Amoreiras e Bairro Alto → Excelente acessibilidade: Eixo Norte-Sul, ligação rápida ao Marquês de Pombal → Estacionamento pago na rua e parques públicos na envolvente
Consultor

Rita Correia
Contactos do consultor












