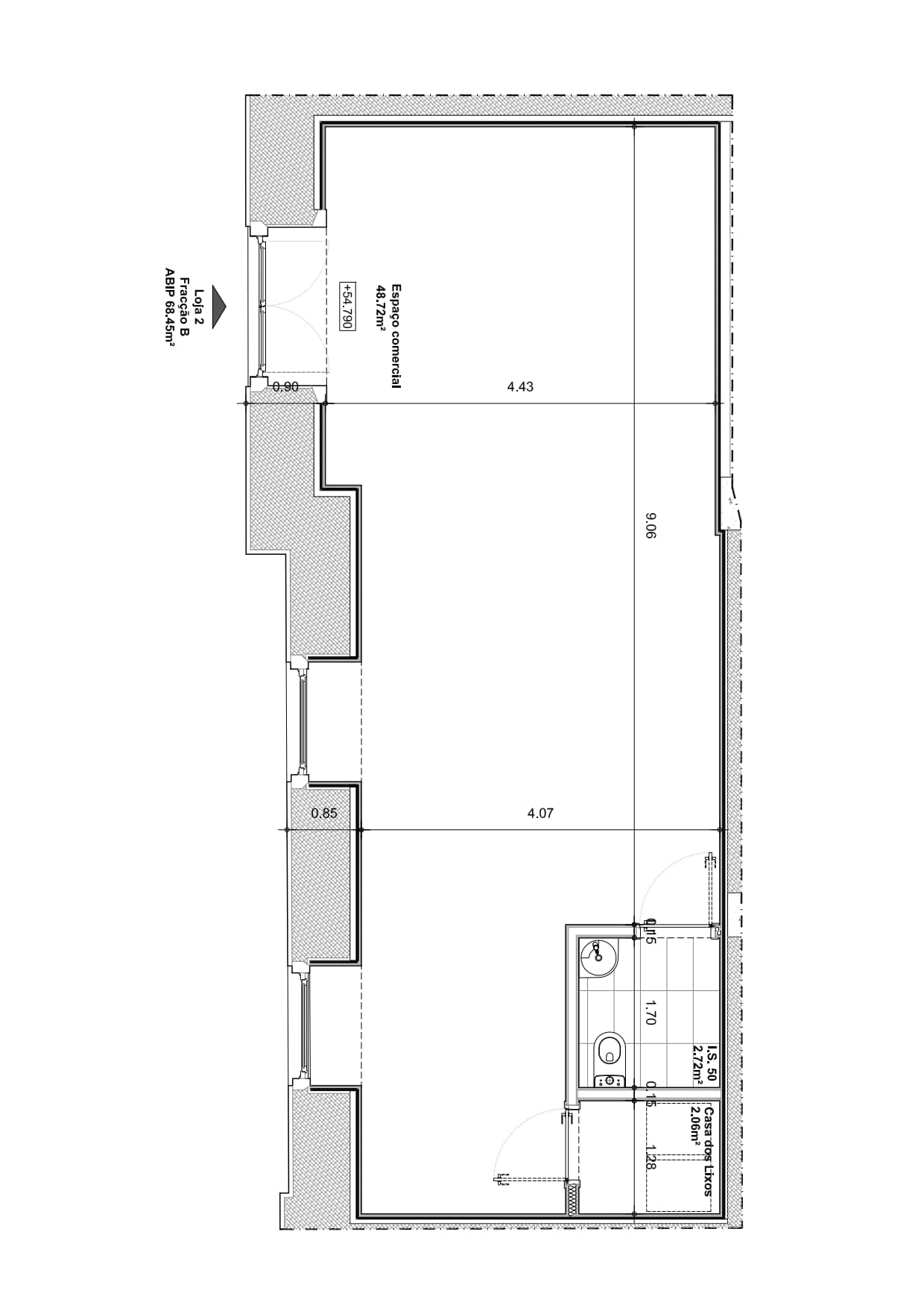
Loja
ID 28504953Avenida Duque de Loulé 88
LISBOA, 1050-092
Preço Sob Consulta
- Área68 m²
- DisponibilidadeSob consulta
- Descrição
- Certificação energética
- Localização e Transporte
- Piso
- Brochuras
- Consultores
- Questões sobre o imóvel
Descrição
Avenida Duque de Loulé 88 | Loja 68 m² para arrendar | Lisboa
Loja disponível para arrendamento em plena Avenida Duque de Loulé, a escassos metros do Marquês de Pombal. Numa das artérias mais conhecidas da capital, com fluxo pedonal constante de residentes, profissionais de escritórios.
A zona caracteriza-se por mix comercial diversificado e marcas de referência:
✓ Restauração estabelecida: A Padaria Portuguesa, Burger King, Food Market, Sushi Come, Ajitama
✓ Retalho alimentar: My Auchan, Continente, Pingo Doce
✓ Ginásios: Holmes Place e VivaGym,
✓ Hotéis: Exe Liberdade, Epic Sana Marquês de Pombal, Moxy Lisbon, H10 Duque de Loulé
✓ Empresas: Cuatrecasas, PwC, Semapa, EDP
✓ Funcionamento: horário comercial alargado, zona ativa 7 dias/semana
Características do imóvel:
✓ Montra e porta de acesso directo para Avenida Duque de Loulé
✓ 1 lugar de estacionamento subterrâneo incluído
✓ Arrecadação para stock e apoio logístico
✓ Configuração versátil para diferentes conceitos comerciais
✓ Infraestruturas preparadas para operação imediata
Situada entre a zona do Saldanha e o Marquês de Pombal, beneficia de posicionamento excecional:
→ 50 metros da Praça Marquês de Pombal - nó central de transportes e referência urbana
→ Metro Picoas (Linha Amarela), Marquês de Pombal (Linhas Amarela e Azul)
→ Rede Carris e interfaces de transporte na proximidade imediata
→ Perfil de cliente: executivos, residentes zona nobre, visitantes internacionais, população flutuante de hotéis e escritórios.
Torna este imóvel adequado para variados conceitos, como:
Restauração e cafetaria | Concept store | Moda e acessórios | Serviços financeiros | Clínica e saúde | Agência imobiliária | Tecnologia e telecomunicações | Espaços premium e lifestyle
Agende visita com JLL - Especialistas em espaços comerciais de excelência em Lisboa
Espaços disponíveis
Certificação energética
Localização e Transporte
Consultor

Guilherme Marques
Contactos do consultor







